



























Zadar – Zaton, exclusive detached multi-family house with 290 m² of living space, built in 2023 on a plot of 511 m², is for sale. High-quality construction, aluminum window frames, all rooms with underfloor heating and air conditioning, automatic irrigation of the green areas, preparation for the installation of a solar system and an electric car charging station, etc.
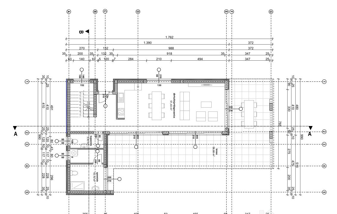
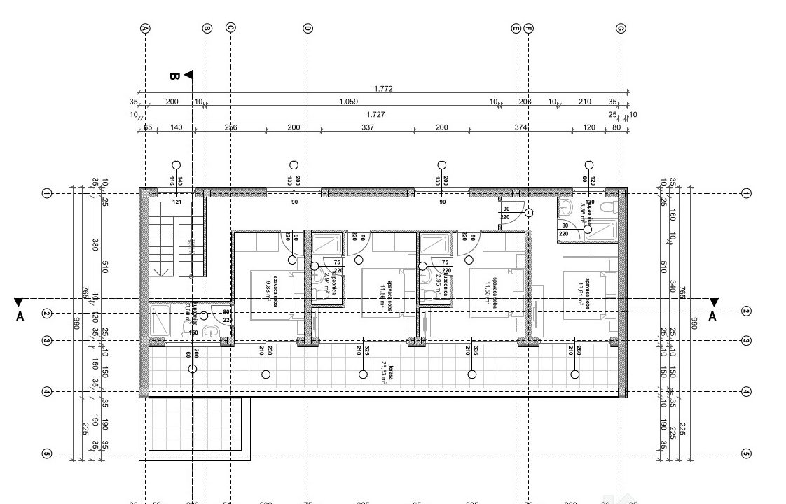
Consists of ground floor and upper floor:
Ground floor: living room, kitchen + dining area, storage room, bathroom with access from outside, toilet, and covered terrace.
Upper floor: four bedrooms, four bathrooms, and covered terrace.
Location: Quiet location, 1000 m from the sea and beach, close to all necessary amenities for a pleasant and peaceful vacation.
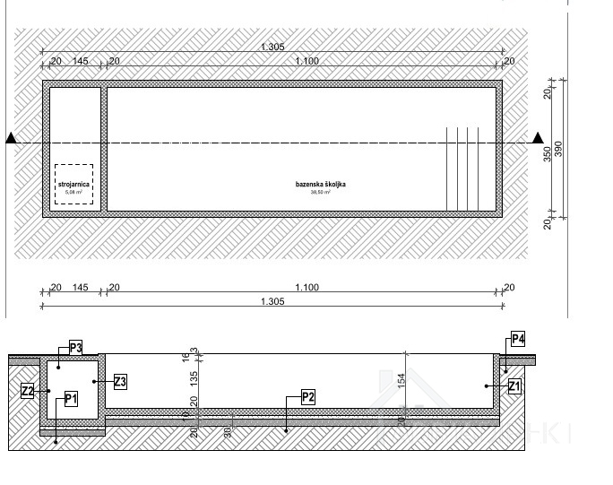
Special features: Three parking spaces, large heated pool (3.5 m x 11 m) with integrated hydromassage and counter-current system, outdoor fireplace, and well-kept garden.
This is a common note that can be displayed on all properties but controlled from one simple option.
Immerse yourself in the captivating ambiance of our properties. Book a personalized tour to explore the exquisite beauty and unique features of our property.
Our knowledgeable staff will guide you through the property, answering any questions you may have.
€467,000
Added: October 15, 2024
Level 1, 12 Sample St,
Sydney NSW 2000
Zadar – Zaton, sale of a beautiful stone villa