





Zadar – Privlaka (Škrapavac), for sale is a luxurious two-bedroom apartment with 201.83 m², located on the second floor of a residential building with a total of six apartments, built in 2024. High-quality construction, facade with 10 cm Styrofoam insulation, Rehau windows with 7 chambers and large sliding doors, electric shutters and insect screens, underfloor heating with WiFi thermostat in the bathrooms, dining room and living room, Villeroy & Boch and Hansgrohe sanitary facilities, air conditioning in every room, class A ceramics, etc.
The apartment consists of: two bedrooms, living room + kitchen + dining room, hallway, two bathrooms, and terrace.
THE APARTMENT HAS A BEAUTIFUL SEA VIEW!!!
The apartment is in an excellent location, only 55 m from the sea and beach (second row), close to all the necessary amenities for a pleasant and peaceful vacation!
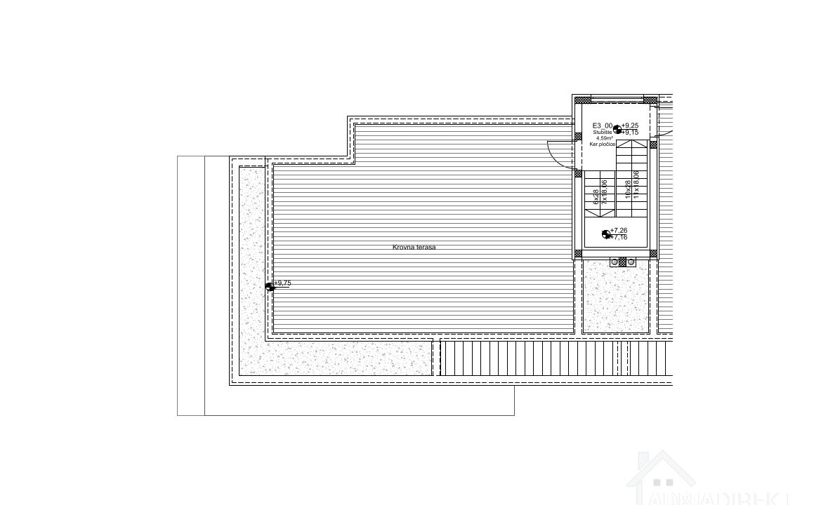
There are two parking spaces and a roof terrace of 77.49 m², where preparations have already been made for a jacuzzi and a roof kitchen.
This is a common note that can be displayed on all properties but controlled from one simple option.
Immerse yourself in the captivating ambiance of our properties. Book a personalized tour to explore the exquisite beauty and unique features of our property.
Our knowledgeable staff will guide you through the property, answering any questions you may have.
Price On Call
Added: July 23, 2014
Price On Call
Added: August 4, 2013
Level 1, 12 Sample St,
Sydney NSW 2000
Modern ground floor apartment with garden, pool, and sea view – Sukošan