














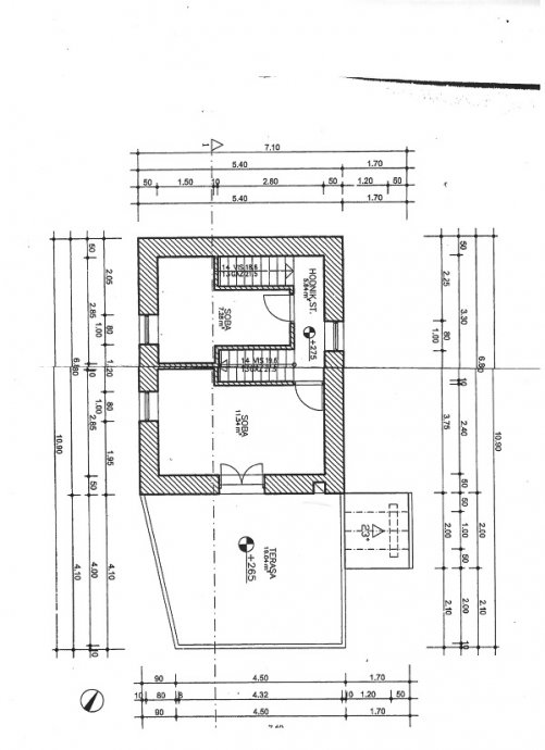
Das Grundstück auf dem Bild wird in ein wahres Schmuckstück verwandelt. Es ist nur ein paar Minuten vom Stadtzentrum entfernt und erfüllt dennoch den Wunsch nach Ruhe und Privatsphäre. Wunderschöner Blick auf die Adria und einige seltene Inseln mit unberührter Natur. Es besteht die Möglichkeit, zusätzliches Land zu erwerben. Die Nähe zum Meer und die unberührte Natur verleihen dieser Immobilie einen Wert, den man auf Inseln nur selten findet. Das Gebäude hat eine Wohnfläche von 110,11 m². Erdgeschoss 60,22 m², Obergeschoss 42 m² und kleiner Dachboden von 8 m². Es ist möglich, Änderungen an dem Projekt anzufordern. Jagen, Angeln, Golf und Nacktbadestrände sind nur 5 Autominuten entfernt.
Dies ist eine allgemeine Notiz, die auf allen Immobilien angezeigt werden kann, aber über eine einfache Option gesteuert wird.
Tauchen Sie ein in das fesselnde Ambiente unserer Immobilien. Buchen Sie eine personalisierte Tour um die exquisite Schönheit und die einzigartigen Eigenschaften unseres Anwesens zu erkunden.
Unser sachkundiges Personal wird Sie durch das Anwesen führen und alle Fragen beantworten, die Sie haben.
€205,390
Hinzugefügt: Oktober 16, 2024
Level 1, 12 Sample St,
Sydney NSW 2000
Schönes Haus in Nerezine-Mali Losinj